Prodej pozemku k výstavbě bytového domu v Náchodě

Prodej pozemku k výstavbě bytového domu v Náchodě

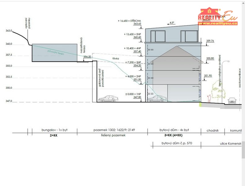
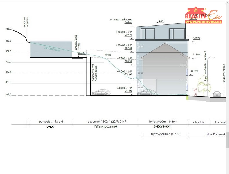
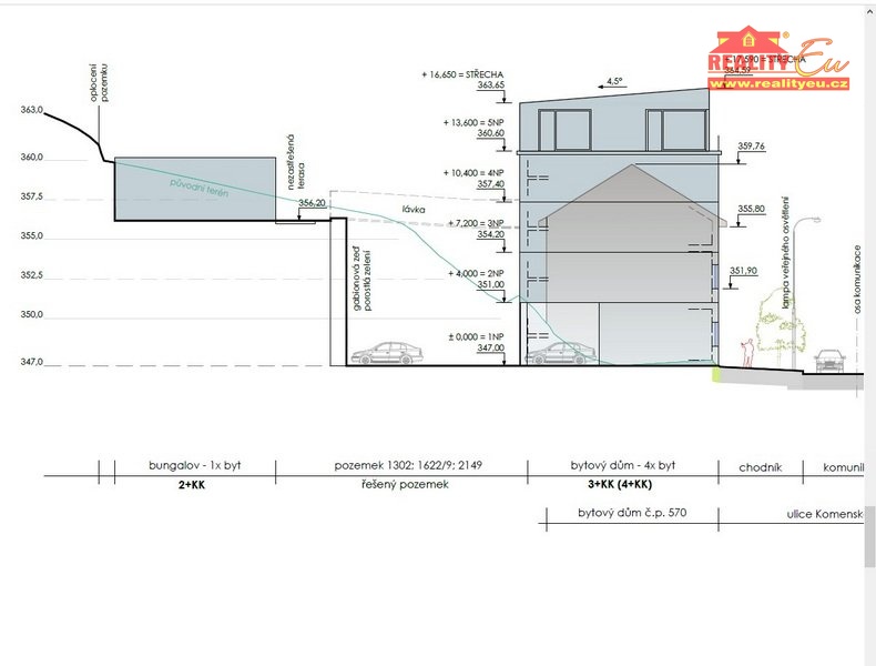
Pozemek s pravomocným stavební povolením na výstavbu bytového domu v centru Náchoda. Jedná se o individuální možnost vybudování objektu bytového domu o 4 moderních bytových jednotkách a jednotce bungalového typu s odpovídajícím množstvím parkovacích stání.
1. NP parkovací stání, vstup do výtahu a technické místnosti
2. NP BJ 4 kk o výměře 93 m²
3. NP BJ 4 kk o výměře 93 m² a BJ bungalov s terasou 2 kk o výměře 63 m²
4. NP BJ 3 kk s balkonem / terasou o výměře 74 m²
5. NP BJ 4 kk s lodžii o výměře 93 m²
Projekt oslovuje zájemce o kvalitnější moderní bydlení, pro něž je současná ,,seconhandová“ bytů nabídka nedostačující. U výstavby se počítá s připojením na obecní vodu, kanalizaci, plyn a elektřinu. Všechny tyto sítě jsou v přiléhající komunikaci. Právoplatné stavební povolení bylo vydáno na jaře 2024. Pozemek je v současné době beze staveb a oplocen. Prodej daného projektu je formou podílu v jednoúčelové společnosti.

Základní údaje

ID zakázky
322PN
Cena
4 500 000 Kč
Ulice
Komenského
Město
Náchod
Plocha pozemku
440 m²
Komunikace
Asfaltová
Doprava
Vlak, Silnice, Autobus
Voda
Dálkový vodovod
Elektrické připojení
230V, 400V
Odpad
Veřejná kanalizace
Plyn
Plynovod

Umístění

Vyřizuje

Jméno
Novotný Jiří
Mobil
+420 777 602 884
Telefon
+420 491 420 997

Fotogalerie