Prodej domu s více byty, garážemi a pozemkem k výstavbě v Hradci Králové - Kukleny

Prodej  domu s více byty, garážemi a pozemkem k výstavbě v Hradci Králové - Kukleny

Nabízíme k prodeji zděný rodinný dům z roku 1986, situovaný v klidné vilové čtvrti Hradec Králové – Kukleny. Nemovitost je vhodná jak pro vícegenerační bydlení, tak jako investiční příležitost s potenciálem dalšího rozvoje.
Dům je dispozičně řešen do tří nadzemních podlaží.
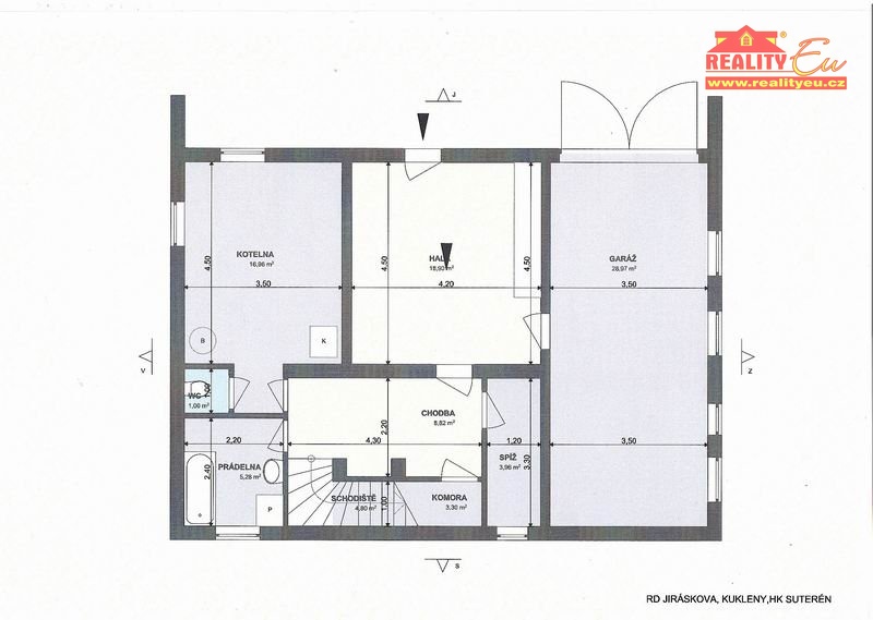
1. nadzemní podlaží má samostatný vstup a tvoří samostatnou jednotku se dvěma obytnými místnostmi, sociálním zázemím, kotelnou na tuhá paliva a garáží.
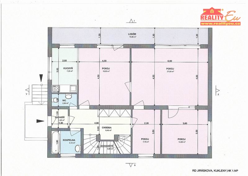
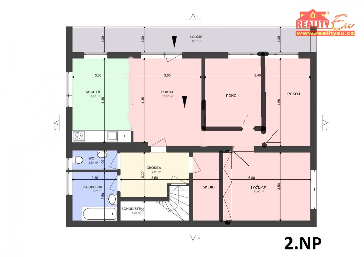
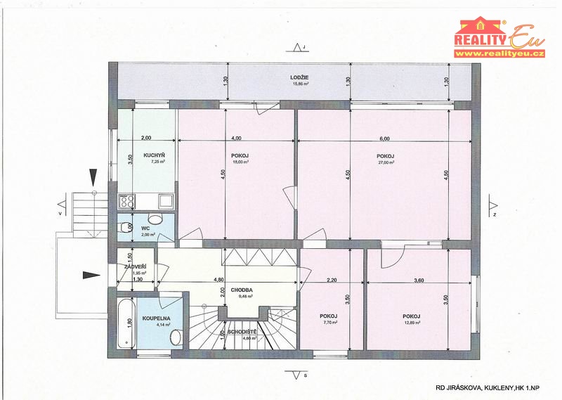
2. a 3. nadzemní podlaží mají společný vstup a jsou využívána jako samostatné bytové jednotky. Ve 2. NP se nachází byt 4+1 s lodžií o výměře cca 90 m², ve 3. NP byt 4 kk, který prošel modernizací a nabízí komfortnější standard bydlení.
Nemovitost je v současnosti využívána jako investiční – všechny tři jednotky jsou pronajaty.
Velkou předností je rozlehlý pozemek o výměře 1 214 m², kde je dle schválení možné realizovat výstavbu dalšího rodinného domu, což výrazně zvyšuje investiční potenciál celé nemovitosti.
Na pozemku se dále nachází samostatná garáž a kryté venkovní posezení.
Dům je napojen na městský vodovod, kanalizaci a elektřinu (240/400 V). K dispozici je také vlastní zdroj vody pro zalévání. Na hranici pozemku je plyn (HUP). Vytápění je řešeno ústředně (kotel na tuhá paliva nebo elektrokotel), ohřev vody zajišťují elektrické bojlery.
Díky své poloze v klidné části města s výbornou dostupností a zároveň s potenciálem další výstavby představuje tato nemovitost zajímavou příležitost jak pro investory, tak pro vícegenerační bydlení.

Základní údaje

ID zakázky
256RN
Cena
14 900 000 Kč
Ulice
Jiráskova
Číslo popisné
745
Město
Hradec Králové
Městská část
Kukleny
Užitná plocha
260 m²
Plocha pozemku
1.214 m²
Stav objektu
Dobrý
Typ stavby
Cihlová
Typ domu
Patrový
Poloha domu
Samostatný
Energetická třída
G - Mimořádně nehospodárná
Parkování
Ano
Garáž
Ano
Lodžie
Ano
Komunikace
Asfaltová
Doprava
Vlak, Silnice, MHD, Autobus
Voda
Dálkový vodovod
Elektrické připojení
230V
Odpad
Veřejná kanalizace
Velikost (počet pokojů)
5 a více pokojů
Číslo orientační
7

Umístění

Vyřizuje

Jméno
Novotný Jiří
Mobil
+420 777 602 884
Telefon
+420 491 420 997

Fotogalerie